Engineer Artists Project – Steel Fabrication Modeling and Detailing
Structural Design & Detailing Expert: Juan Pérez
Location: Fresno, California, USA
Project Type: Medical Office Building (Two Stories, 49,000 sq. ft.)
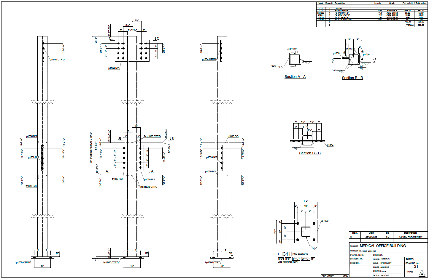
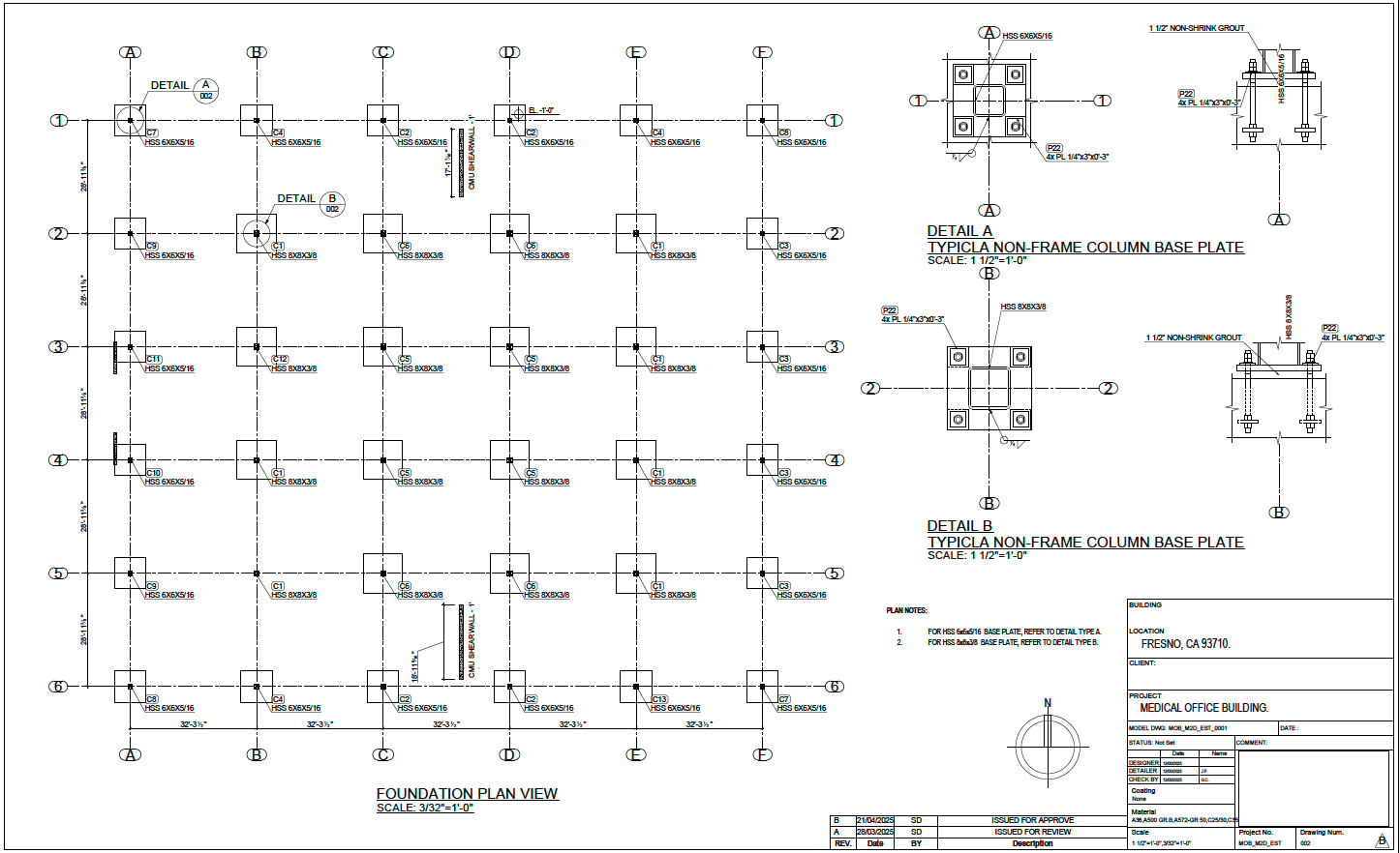
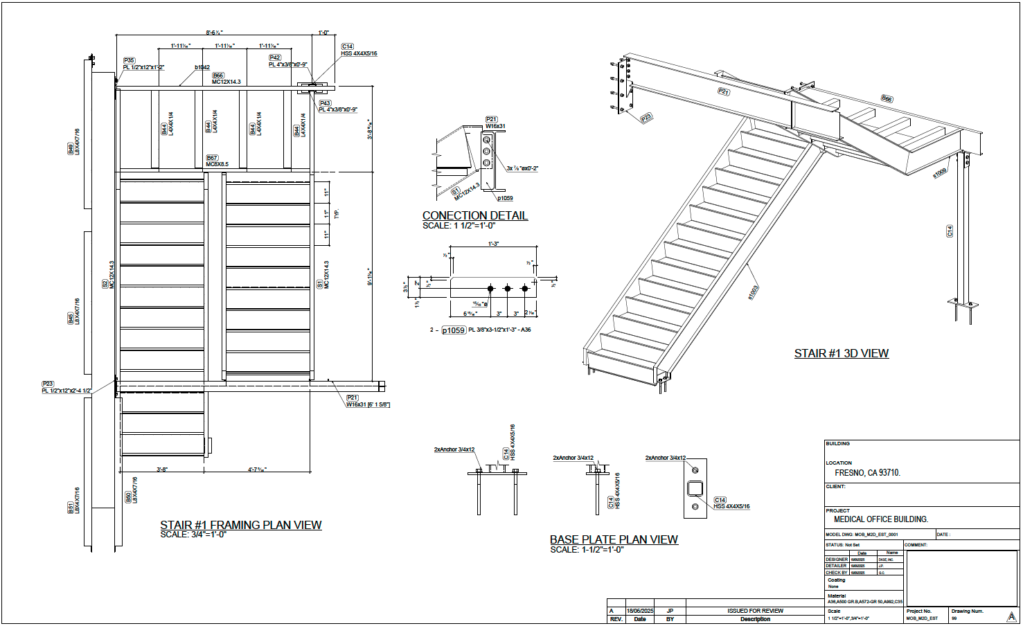
This project involved the 3D modeling and preparation of manufacturing and assembly drawings for a two-story medical office building in Fresno, California. Engineer Juan Pérez applied advanced Building Information Modeling (BIM) techniques to transform a complex conceptual design into a precise, fabrication-ready model using Autodesk Advance Steel.
The scope included developing detailed structural steel framing plans, base plates, and connection assemblies fully coordinated for fabrication and field installation. Through BIM-driven automation, Juan maintained accuracy across all documentation, improving coordination between design, detailing, and construction.
This project highlights how digital modeling enhances fabrication workflows, providing clarity, precision, and efficiency from concept to completion.

